|
Parduodu medini namuka su mansarda. Naujas, 6x8. Pilnai sukomplektuotas su lauko ir vidaus durimis, laiptais, langais(stiklo paketai), stogo danga ir pasiltinimu.Prireikus atvezu ir surenku. Kaina 39000 Lt. Tel. 8-63197981
| Prikabinti failai: |

sonines sienos D ir E.jpg [ 45.91 KB | Peržiūrėta 569 kartus(ų) ]
|

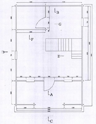
antro auksto planas.jpg [ 40.46 KB | Peržiūrėta 489 kartus(ų) ]
|

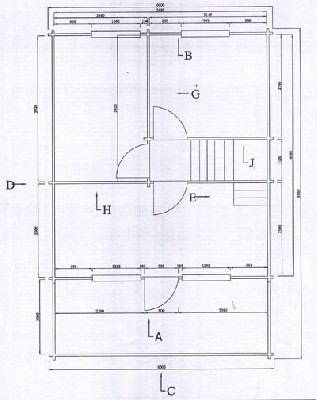
pirmo auksto planas.jpg [ 33.17 KB | Peržiūrėta 593 kartus(ų) ]
|

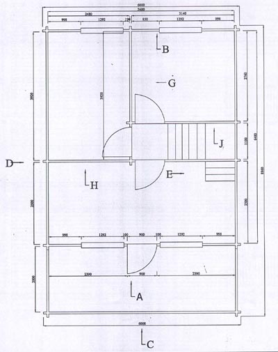
sienos A ir B.jpg [ 59.91 KB | Peržiūrėta 558 kartus(ų) ]
|

Priekis siena C.jpg [ 52.23 KB | Peržiūrėta 635 kartus(ų) ]
|
|